Fraser Suites Le Claridge Champs Elysees

74 avenue des Champs Elysees, Paris, 75008

Located along the Avenue des Champs-Élysées, the award-winning Fraser Suites Le Claridge Champs-Elysées, Paris is situated on one of the world’s most prestigious streets where the grandeur extends from Place de la Concorde to the magnificent Arc de Triomphe. The elegant classic design of the studios, one and two-bedroom apartments and chic penthouses meet the highest expectation of our guests delighted with the abundance of exceptional facilities - our luxury serviced apartments in Champs-Elysées are sure to offer a relaxing and comfortable stay in the French capital. Housed in an early 1900s heritage building, Fraser Suites Le Claridge Champs-Elysées has catered to many celebrity guests. Our 117 stylish furnished Gold-Standard serviced residences range from executive suites to three bedrooms, making it a marvellous choice of luxury accommodation in Paris for both business and leisure travellers alike.

 

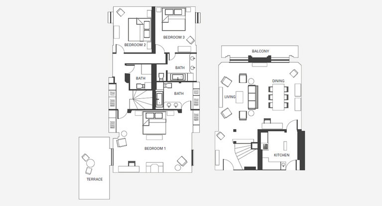
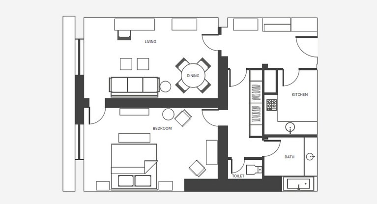
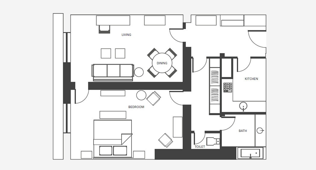
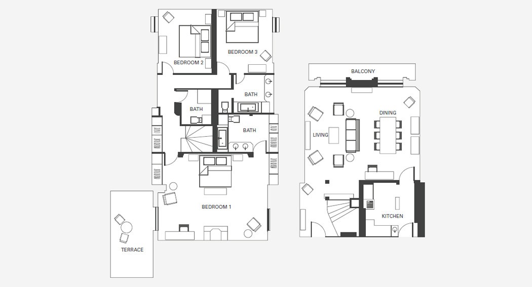
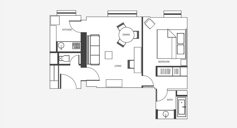
Whether you choose to dine with a view of the Eiffel Tower or unwinding on the chic balcony looking on the Avenue des Champs Elysees, Arc de Triomphe and Grand Palais, you will not be disappointed with the incredibly fast-paced and exciting atmosphere that the city creates. Our fully-equipped penthouse provides you with the excellent opportunity of spending time in the French capital while enjoying elegant modern design, with top class features. Here in your very own apartment, watch the city move right beneath your feet. Guests find the one & two bedroom apartments a perfect choice when travelling in a larger group. The apartments come with fully-furnished separate living room, comfortable dining, spacious kitchen and large bedrooms.

 

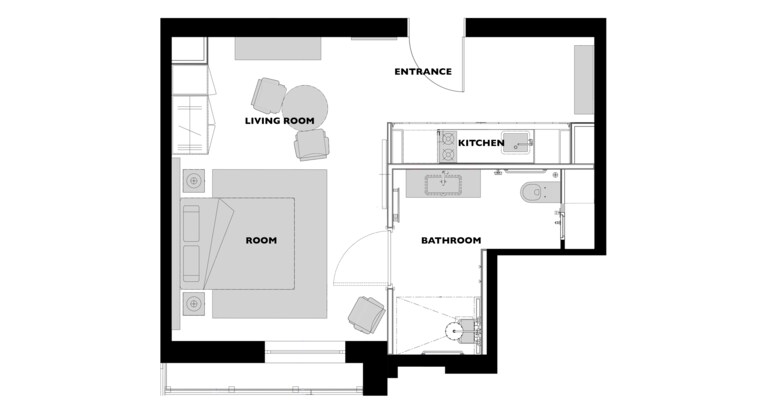
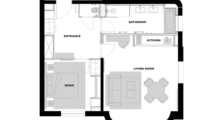
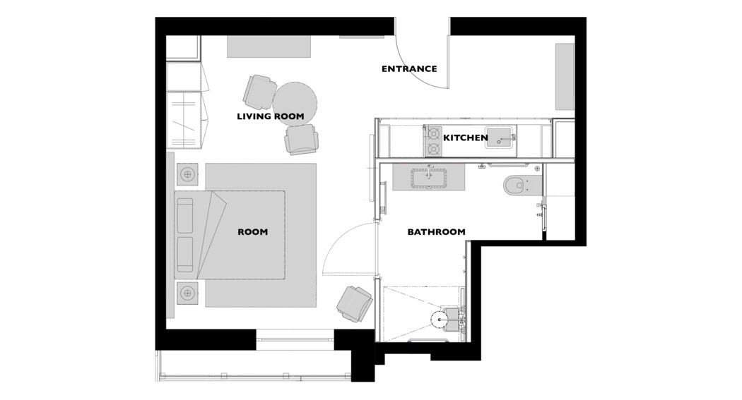
Depending on the apartment, guests can have a balcony view from the living room, while others have the balcony option in the bedrooms, offering views on the tranquil Le Claridge Patio, the vibrant Champs-Elysées or the monumental Eiffel Tower. When travelling to Paris in a slightly smaller group, a perfect accommodation for guests would be our fully-furnished studio suites where you can enjoy the comfort of your own space with all the added perk of enjoying essential amenities such as, living, dining and studying areas, a fully equipped kitchen and modern bathroom. A private balcony looking onto top attractions in the capital is a benefit that pleases our guests. Thanks to the central location of the hotel, you can enjoy your stay in Paris while being near to a number of attractions for leisure travellers while business guests can appreciate the experience of being in one of the most important business hubs in the world. Our residences come complete with modern conveniences making your stay in Paris a bit more special. We are basing the changes in the hotel on our guests’ feedback and understanding more and more of our guests’ needs. Fraser Suites Le Claridge Champs-Elysées offers beneficial packages with discounts for guests who are staying in the hotel longer term, booking in advance or being Fraser World Members.

Property Location

Loading Maps
74 avenue des Champs Elysees, Paris, 75008, France